1195 Georgia St A-CImperial Beach, CA 91932
Questions? Call or text Jean and Ken Tritle/ Buyer's Agents at DreamWell Homes Realty # 760-798-9024. Thanks!




Mortgage Calculator
Monthly Payment (Est.)
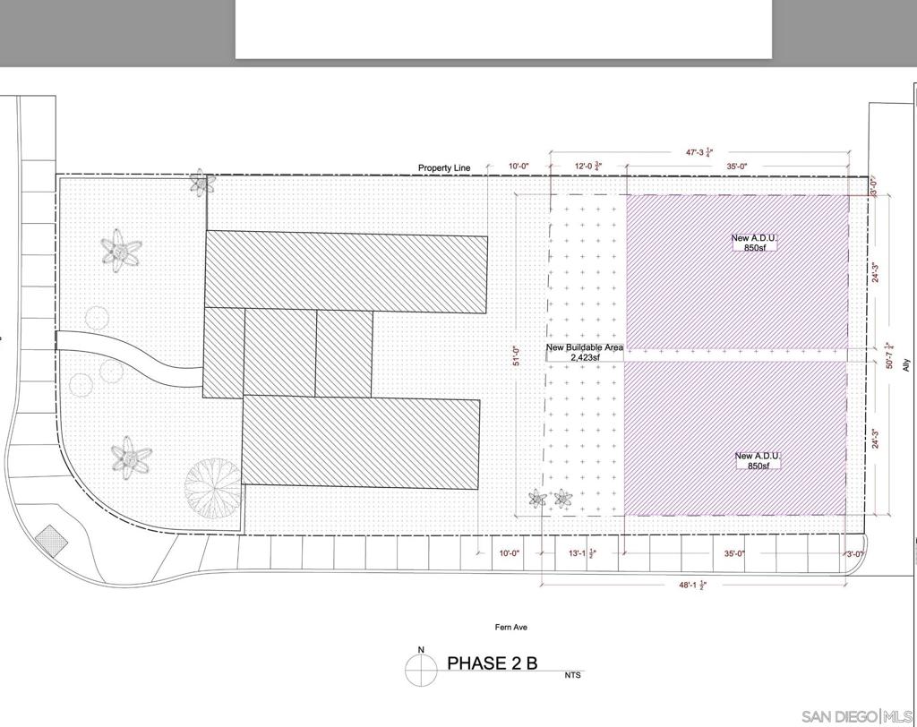
$7,705urn-Key Triplex with Development Opportunity to add two more units. Welcome to 1195 Georgia Street A-C, Imperial Beach, CA 91932 — a rare investment opportunity just minutes from the sand. This fully rented, turn-key triplex offers immediate cash flow with strong in-place income, while also presenting significant upside potential through redevelopment or expansion. Situated on an expansive Corner lot with Alley in an R-3000 zoning area, the property benefits from favorable density allowances—making it ideal for an investor or end-user looking to add units or reconfigure the site for even greater returns. The land value alone offers long-term appreciation and flexibility, with Imperial Beach growth and redevelopment trends continuing to rise. Each of the 3 units is well-maintained and occupied—providing steady income from day one. Whether you're a savvy investor seeking a strong cash-flowing asset or a homeowner aiming to live in one unit while generating income from the others, this property checks every box.Don’t miss your chance to secure a high-potential asset in one of San Diego’s fastest-growing coastal communities.
| 2 months ago | Listing updated with changes from the MLS® | |
| 2 months ago | Listing first seen on site |
This information is for your personal, non-commercial use and may not be used for any purpose other than to identify prospective properties you may be interested in purchasing. The display of MLS data is usually deemed reliable but is NOT guaranteed accurate by the MLS. Buyers are responsible for verifying the accuracy of all information and should investigate the data themselves or retain appropriate professionals. Information from sources other than the Listing Agent may have been included in the MLS data. Unless otherwise specified in writing, the Broker/Agent has not and will not verify any information obtained from other sources. The Broker/Agent providing the information contained herein may or may not have been the Listing and/or Selling Agent.
Did you know? You can invite friends and family to your search. They can join your search, rate and discuss listings with you.